首页
公司介绍
新闻中心
组织机构
服务理念
售后服务
联系我们
产品中心
jtgk.png

产品中心

Q611F气动两片式球阀

您的位置:阀门 - 球阀 - Q611F气动两片式球阀 更新时间:2024-09-03 09:09:35
Q611F气动两片式球阀
    • 质量安全:压力、材质、密封等全方位检测确保质量过关!
    • 价格比较:在相同品质的情况下,厂里直销,更具有优势!
    • 交货快捷:常规产品现货供应,生产加工销售一条龙服务!
      导读:Q611F气动二片式球阀是由气动执行器与两片式球阀组成,利用压缩空气作为能源,接受气动信号或电气定位器等附件信号进行工作,具有结构...

    • 产品描述
    • 在线询价
    • 技术咨询
    Q611F气动两片式球阀Q611F气动两片式球阀

    Q611F气动二片式球阀是由气动执行器与两片式球阀组成,利用压缩空气作为能源,接受气动信号或电气定位器等附件信号进行工作,具有结构简单、操作方便等优点。提高了使用寿命,气缸内输入气压后,作用于活塞上产生一定的推力,使齿轮型输出在活塞推动下,使齿轮输出轴于旋转,带动阀轴转动,从而使球阀球体在阀内随着转动,广泛应用于生产过程自动控制系统中的调节或开关操作场合。

    产品名称: 气动两片式球阀 产品型号: Q611F
    公称通径: DN15~DN100 结构形式: 球形
    公称压力: 1.6Mpa~6.4Mpa/1000WOG 连接方式: 法兰、对夹、内螺纹、焊接
    适用温度: ≤180ºC 驱动方式: 气动
    阀体材质: 铸钢、不锈钢 制造标准: 国标GB、德国DIN、美国API、ANSI
    适用介质: 水、油、气体、液体 生产厂家: 上海凯利科阀门有限公司

    产品说明

    Q611F气动两片式球阀阀体铸造采用国外引进的先进工艺,结构合理、造型美观。阀座采用弹性密封结构,密封可靠,启闭轻松。阀杆采用倒密封的下装式结构,阀腔异常升压时,阀杆不会被冲出。

    工作原理

    Q611F气动二片式球阀是由气动执行器与两片式球阀组成,利用压缩空气作为能源,接受气动信号或电气定位器等附件信号进行工作,具有结构简单、操作方便等优点。提高了使用寿命,气缸内输入气压后,作用于活塞上产生一定的推力,使齿轮型输出在活塞推动下,使齿轮输出轴于旋转,带动阀轴转动,从而使球阀球体在阀内随着转动,广泛应用于生产过程自动控制系统中的调节或开关操作场合。

    产品特点

    1、气动两片式球阀由仿意大利AT气动执行机构和Q11F球阀组成。
    2、可选配限位开关,空气过滤减压阀、手轮机构,电磁阀。
    3、气动执行器采用铝合金挤出工艺制作,表面采用硬化处理,外观美观,有利于安装,运输。
    4、采用精密压铸工艺制作的铝合金活塞,保证了双活塞精确的对称,并配合高质量的O型环和导向阀,可的供很高的扭矩输入与气压比,双导轨和活塞设计保证了输出扭矩的恒定。
    5、活塞导向带采用大接触面积,自润滑设计高强度材料保证了低摩擦,正常使用寿命可达100万次!
    6、阀体设计,铸造均采用台湾的先进工艺,具有结构合理。能达到气泡级密封,启闭力矩小,使用寿命长。
    7、阀体与阀杆之间带防静电装置,阀杆防爆出装置设计,可适用多种恶劣场合选型。造型美观,质量可靠等优点。

    主要技术参数

    阀体形式 内螺纹精铸阀体
    公称通径 DN6~100mm
    公称压力 PN1.6、2.5、4.0、6.4 MPa;ANSI 150 300 600LB;JIS 10 20 30K
    连接形式 管螺纹(G)、锥螺纹(NPT)
    阀盖形式 一体式
    压盖型式 压帽拧紧式
    密封填料 V型聚四氟乙烯填料、含浸聚四氟乙烯石棉填料、石棉纺织填料、石墨填料

    阀内件

    阀芯形式 O型球型阀芯
    流量特性 快开特性
    执行机构
    执行器型号 GT、SR、ST、AT、AW系列单双作用气动执行器
    供气压力 0.4~0.7MPa
    气源接口 G1/4"、G1/8"、G3/8"、G1/2"
    环境温度 -20~+90℃
    作用形式 单作用执行机构:气关式(B)--失气时阀位开(FO);气开式(K)--失气时阀位关(FC)
    双作用执行机构:气关式(B)--失气时阀位保持(FL);气开式(K)-- 失气时阀位保持(FL)
    可配附件 定位器、电磁阀、空气过滤减压器、保位阀、行程开关、阀位传送器、手轮机构等
    ※注:如需详细执行器参数,请进入气动执行器页面进行查阅。

    主要零件材料

    1 左阀体 WCB、CF8、CF8M、CF3M
    2 阀座 PEFE、PPL、304、316
    3 球体 WCB、CF8、CF8M、CF3M
    4 密封圈 PTFE/金属石墨缠绕垫片
    5 右阀体(中阀体) WCB、CF8、CF8M、CF3M
    6 阀杆 2Cr13304、316、316L
    7 填料压盖 WCB、CF8、CF8M、CF3M

    主要性能指标

    公称通径DN(mm) 6 8 10 15 20 25 32 40 50 65 80 100
    允许压差(MPa) ≤ 公称压力
    动作范围 0~90°
    泄露量Q 软密封为零泄露;金属密封符合ANSI B16.104 IV级标准
    基本误差 带定位器:小于全行程的±2%
    回差 带定位器:小于全行程的2%

    外形结构图

     

    主要性能参数

    试验压力(Mpa) 公称压力(Mpa) 压力级(class) JIS(K)
    1.6 2.5 4.0 6.4 10.0 150 300 600 10K 20K
    强度试验 2.4 3.8 6.0 9.6 15.0 3.1 7.8 15.3 2.4 3.8
    密封试验 1.8 2.8 4.4 7.0 11.0 2.2 5.6 11.2 1.5 2.8
    气密试验 0.5~0.7

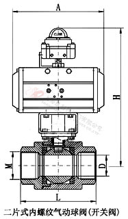
    主要外形及连接尺寸

    公称通径 内螺纹连接
    mm inch D L H G A
    10 3/8 10 60 157 3/8″ 140
    15 1/2 15 75 168 1/2″ 140
    20 3/4 20 80 170 3/4″ 140
    25 1 25 90 180 1″ 140
    32 11/4 32 110 185 11/4″ 164
    40 11/2 38 125 200 11/2″ 164
    50 2 50 144 210 2″ 190
    65 21/2 64 186 230 21/2″ 210
    80 3 78 206 250 3″ 247
    100 4 98 240 270 4″ 247
    ※注:以上参数均以国标PN1.6MPa为准,其他压力等级请咨询公司技术部,表中尺寸为不带标准附件数据,另由于产品改进技术创新参数可能有一定变化,请咨询公司技术部门索取最新数据。
     

    声明:【Q611F气动两片式球阀】规格型号、结构尺寸由上海凯利科阀门有限公司提供,如何选择适用的Q611F气动两片式球阀产品,使之在工艺控制中安全可靠、经济适用,可致电我司销售部门及技术部门,我们将在最短的时间内为您解答!

    

    Copyright ©2011-2023 上海凯利科阀门有限公司,版权所有。 京ICP证000000号

    销售电话:021-31001158

    手机号码:13816746668 陈国辉/经理

    电子邮件:klkvalves@126.com@126.com

    主营产品:球阀,闸阀,蝶阀,截止阀,止回阀,调节阀

    本周热门:不锈钢阻火器全天候呼吸阀气动球阀气动蝶阀气动刀闸阀气动调节阀电动球阀电动蝶阀电动刀闸阀电动调节阀不锈钢球阀不锈钢闸阀不锈钢截止阀不锈钢止回阀不锈钢电磁阀高压电磁阀高压球阀波纹管截止阀

    官方网址:www.fm058.com